Basic homes | Casas prefabricadas low cost
Ir a Whatsapp

CASA PREFABRICADA LOW COST MODELO SEVILLA

Diseño compacto y funcional

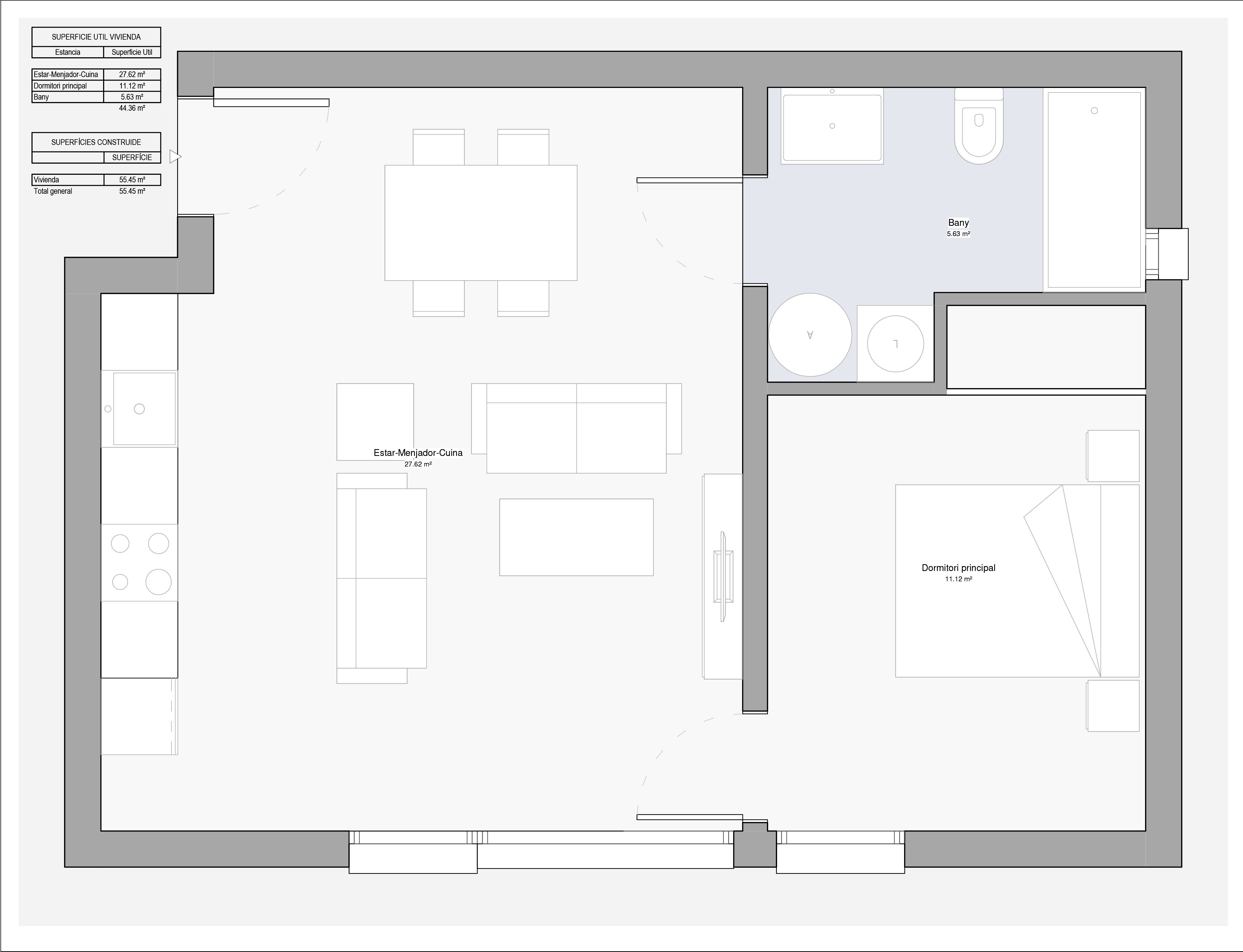
La casa prefabricada modelo Sevilla es una opción ideal para quienes buscan una vivienda eficiente y asequible sin renunciar a la comodidad. Con un diseño inteligente de 55 m², este modelo maximiza cada metro cuadrado para ofrecer un espacio práctico, acogedor y funcional.


Su distribución abierta integra la cocina en el salón-comedor, creando un ambiente diáfano y luminoso que aprovecha al máximo la luz natural. La habitación principal ofrece la privacidad necesaria sin desperdiciar espacio, mientras que el baño moderno y bien equipado garantiza el confort diario.


Gracias a nuestro sistema de construcción industrializado, esta casa prefabricada low cost se entrega en menos de 6 meses, sin demoras ni sobrecostes inesperados. Para mantener los precios más competitivos, trabajamos con diseños cerrados y materiales predefinidos, aunque podrás elegir ciertos acabados interiores como suelos, puertas, mobiliario de cocina y sanitarios dentro de nuestra memoria de calidades.

Casa prefabricada de 55m2


La casa prefabricada modelo Sevilla es la opción perfecta para quienes buscan una vivienda eficiente, asequible y lista para entrar a vivir en tiempo récord. Con un diseño low cost optimizado, este modelo de 55 m² ofrece un espacio bien distribuido que maximiza la comodidad sin renunciar a la calidad.

Casa prefabricada de 55m2 al mejor precio

La casa prefabricada modelo Sevilla es la opción perfecta para quienes buscan una vivienda eficiente, asequible y lista para entrar a vivir en tiempo récord. Con un diseño low cost optimizado, este modelo de 55 m² ofrece un espacio bien distribuido que maximiza la comodidad sin renunciar a la calidad.


Diseño compacto y funcional

La casa prefabricada modelo Sevilla es una opción ideal para quienes buscan una vivienda eficiente y asequible sin renunciar a la comodidad. Con un diseño inteligente de 55 m², este modelo maximiza cada metro cuadrado para ofrecer un espacio práctico, acogedor y funcional.


Su distribución abierta integra la cocina en el salón-comedor, creando un ambiente diáfano y luminoso que aprovecha al máximo la luz natural. La habitación principal ofrece la privacidad necesaria sin desperdiciar espacio, mientras que el baño moderno y bien equipado garantiza el confort diario.


Gracias a nuestro sistema de construcción industrializado, esta casa prefabricada low cost se entrega en menos de 6 meses, sin demoras ni sobrecostes inesperados. Para mantener los precios más competitivos, trabajamos con diseños cerrados y materiales predefinidos, aunque podrás elegir ciertos acabados interiores como suelos, puertas, mobiliario de cocina y sanitarios dentro de nuestra memoria de calidades.

Precio de la casa prefabricada modelo Sevilla: 65.000€


Los precios incluyen: Estructura y cubierta descritas, losa de compresión aislada, acabados de fachada, puertas y ventanas (persianas manuales en dormitorios), instalaciones, sistema aerotérmico para ACS, climatización, pintura interior y alicatados, baños y cocina.


Los precios no incluyen: Trabajos de arquitecto y aparejador 7.000€ (solo para la casa), cimentación por losa 55m2 8.000€, 10% de IVA, excavación de parcela, acometidas hasta el límite de la parcela, licencia de obras, visados de proyecto, alta de suministros, ajardinamiento ni cerramiento de la parcela, gastos logisticos fuera de alrededor de Barcelona en Cataluña  5.000 euros, gastos logisticos fuera de Cataluña, en españa 12.000 euros, gastos logisticos en islas baleares 20.000 euros.

Plano de casa prefabricada modelo Sevilla 55m2

GALERÍA FOTOGRÁFICA DE LA CASA MODELO SEVILLA

Casa prefabricada low cost modelo Sevilla
Casa prefabricada low cost modelo Sevilla
Casa prefabricada low cost modelo Sevilla
Casa prefabricada low cost modelo Sevilla
Casa prefabricada low cost modelo Sevilla
Casa prefabricada low cost modelo Sevilla

EXTRAS QUE PUEDES AÑADIR A LA CASA PREFABRICADA MODELO SEVILLA

A continuación te mostramos las diferentes opciones que puedes añadir a tu casa prefabricada modelo Sevilla. También puedes ver nuestra memoria de calidades de nuestra casa modelo Sevilla para conocer todas las opciones interiores como sanitarios, cocina, etc.

Toldo en casa prefabricada

Toldo 5 x 3 m 

Motorizado con mando a distancia y sistema de emergencia

Color: Gris - Crudo


Precio añadido a precio final

Pérgola de madera en casa prefabricada

Pérgola de madera 6 x 4m

Precio añadido a precio final

Piscina en casa prefabricada

Piscina de  6,10 x 3,30m

Profundidad: 1,50m

Fondo plano


Precio añadido a precio final

Descargar memoria de calidades

PREGUNTAS FRECUENTES

En esta sección respondemos a las dudas más comunes sobre nuestras casas prefabricadas Low Cost. 

Si no encuentras la respuesta que buscas, ¡contáctanos y te asesoraremos encantados!

¿Qué es una casa prefabricada y en qué se diferencia de una casa tradicional?

Las casas prefabricadas son viviendas construidas a partir de módulos o paneles fabricados previamente en un taller y ensamblados posteriormente en el terreno. A diferencia de una casa tradicional, que se construye completamente in situ, en las casas prefabricadas gran parte del trabajo se realiza en un entorno controlado, lo que permite reducir los tiempos de construcción, minimizar los residuos y optimizar el uso de materiales.


Este método de construcción no solo es más rápido, sino también más eficiente y económico. Además, las casas prefabricadas pueden ser personalizadas según las necesidades del cliente, adaptándose a distintos estilos y presupuestos.

¿Son realmente más baratas las casas prefabricadas en comparación con las tradicionales?

Sí, las casas prefabricadas son generalmente más económicas que las de construcción convencional por varias razones:

- Reducción de costos de mano de obra: Al estar fabricadas en un taller, se requiere menos personal en la obra, lo que reduce los costes laborales.

- Menos desperdicio de materiales: La fabricación en un entorno controlado permite aprovechar mejor los recursos y reducir el desperdicio.

- Menor tiempo de construcción: Al reducir los plazos de ejecución, también se reducen los costes derivados de alquiler de maquinaria, permisos y otros gastos asociados a la obra.

Además, nuestras casas prefabricadas están diseñadas para ser energéticamente eficientes, lo que supone un ahorro en la factura de la luz y calefacción a largo plazo.

¿Cuánto tiempo se tarda en construir una casa prefabricada Low Cost?

El tiempo de entrega depende del tamaño, diseño y personalización de la vivienda, pero en general, el montaje de una casa prefabricada puede realizarse en 3 o 4 meses aproximadamente.


Fases del proceso de construcción:

- Diseño y planificación: Se define el modelo de casa y las adaptaciones necesarias.

- Fabricación en taller: Se construyen los módulos o paneles en un ambiente controlado.

- Transporte al terreno: Los módulos se trasladan al lugar donde se ensamblarán.

- Montaje y acabados: Se ensamblan los módulos y se realizan los últimos retoques.

- Entrega de llaves: En pocos meses, tu casa estará lista para entrar a vivir.


Gracias a este proceso optimizado, conseguimos reducir los tiempos de espera sin comprometer la calidad ni la seguridad de la construcción.

¿Las casas prefabricadas son sostenibles y eficientes?

¡Sí! Una de las grandes ventajas de las casas prefabricadas es su enfoque en la sostenibilidad y la eficiencia energética.


Beneficios medioambientales:

- Uso de materiales sostenibles y reciclables, como la madera certificada.

- Menos residuos en la obra, reduciendo el impacto ambiental.

- Reducción de la huella de carbono gracias a un proceso de fabricación más eficiente.


Eficiencia energética:

- Aislamiento térmico de alta calidad para reducir el consumo de calefacción y aire acondicionado.

- Posibilidad de integrar energías renovables como placas solares.

- Ventanas de doble o triple acristalamiento para optimizar el confort térmico.


Gracias a estas características, nuestras casas ofrecen un gran ahorro en consumo energético y una menor dependencia de combustibles fósiles.

¿Se pueden personalizar nuestras casas prefabricadas low cost?

Nuestras casas prefabricadas low cost están diseñadas para ofrecer la mejor relación calidad-precio del mercado. Para lograrlo, trabajamos con modelos cerrados y optimizados, lo que nos permite reducir los costes sin comprometer la calidad ni la eficiencia de la vivienda.

- Diseño cerrado, mayor ahorro: Al no permitir modificaciones estructurales ni cambios en los materiales, conseguimos agilizar la fabricación y montaje, reduciendo tiempos de espera y costes adicionales.

- Materiales seleccionados: Utilizamos una memoria de calidades optimizada que garantiza el mejor rendimiento térmico y acústico. No es posible modificar los materiales de construcción, pero sí puedes elegir entre diferentes opciones de acabados en mobiliario de cocina y lavabos.

- Proceso rápido y eficiente: Al mantener un sistema de producción estandarizado, logramos entregar tu casa en menos de 6 meses, lista para entrar a vivir sin sorpresas en el presupuesto.


Si buscas una vivienda asequible, eficiente y sin complicaciones, nuestras casas low cost son la opción perfecta pero si lo que buscas es una casa prefabricada totalmente personalizada nuestros socios de AMR Arquitectura diseñarán y construirán la casa que tienes en mente.

Logo Basic Homes
Carrer Andreu Cerdà, 27  |  08757 Corbera de Llobregat  | BARCELONA  |  672 823 813comercial@basichomes.es

Politica de Privacidad  |  © Basic Homes 2025    |  Web desarrollada por www.xavimoyastudio.com

Plan de Recuperación
Instagram @casas_prefabricadas_low_cost

Esta página web usa cookies

Las cookies de este sitio web se usan para personalizar el contenido y los anuncios, ofrecer funciones de redes sociales y analizar el tráfico. Además, compartimos información sobre el uso que haga del sitio web con nuestros partners de redes sociales, publicidad y análisis web, quienes pueden combinarla con otra información que les haya proporcionado o que hayan recopilado a partir del uso que haya hecho de sus servicios.